Villa Astrid

ljust, stilrent och barnvänligt

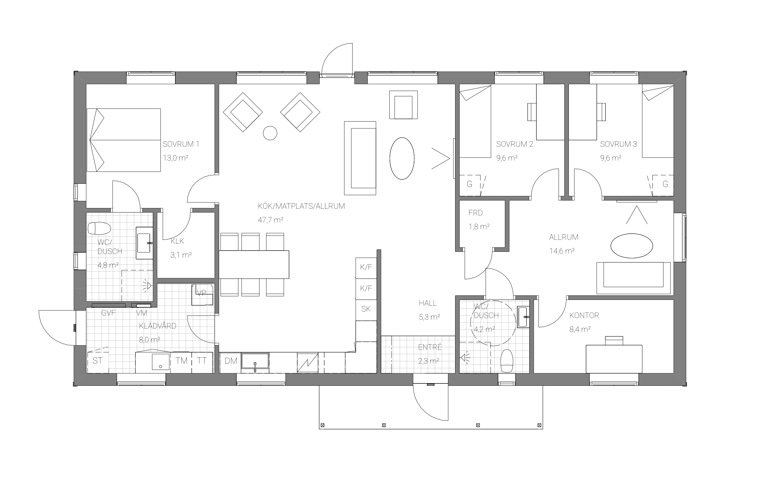
Villa Astrid är ett modernt enplanshus i laduhusstil, utformat för att passa barnfamiljens behov. Med sina öppna och ljusa sociala ytor blir huset en naturlig samlingsplats för hela familjen. Planlösningen är smart uppdelad i en separat vuxenavdelning med master bedroom och en barnavdelning med egna sovrum och badrum, vilket skapar både närhet och avskildhet i vardagen.

Fakta

 

Antal plan

1-plan

Boarea

138 m²

Byggnadsarea

164 m²

Planritning

Skrolla till toppen