Villa Väsjön

Stilren design med sociala ytor

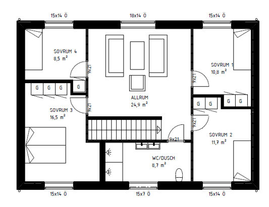
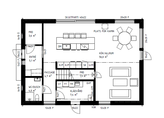
Villa Väsjön är en modern tvåplansvilla som kombinerar stilren design med sociala ytor. På entréplan möts du av kök, matplats och vardagsrum i en öppen planlösning som bjuder in till gemenskap. Ett stort skjutparti öppnar upp mot utemiljön och suddar ut gränsen mellan inne och ute. En dold trappa leder till den mer privata övervåningen där fyra sovrum och ett allrum skapar en avskild plats för familjens vardag.

Fakta

 

Antal plan

2-plan

Boarea

178 m²

Byggnadsarea

105 m²

Planritning

Skrolla till toppen